This article integrates research and analysis developed by former SPUR intern Wen Yang.
Part 2 in this series explores permitting and inspection improvements. Part 3 looks at changes to make at the state level.
As the Bay Area phases out sales of gas furnaces and water heaters, more and more property owners will need to install zero-pollution, high-efficiency electric heat pumps in homes. City planners must quickly make that installation easier and more affordable by amending municipal zoning ordinances and permitting processes. In this first installment in our series on accelerating heat pump adoption, SPUR recommends four zoning code strategies. Read Part 2, on permitting and inspections.
Updating local laws for climate-friendly technological transitions
State and local efforts are smoothing the path for siting and permitting rooftop solar (e.g., the California Solar Bill of Rights) and electric vehicle chargers (e.g., right-to-charge laws). Now Bay Area planners need to start preparing municipal codes and permitting processes to do the same for heat pumps.
Make no mistake, heat pumps are coming to the Bay Area soon. Bay Area regulators amended clean air rules in March 2023 to phase out the sale of new gas heating equipment over the next decade. This transition means a lot more zero-pollution, high-efficiency electric heat pumps, resulting in better indoor air quality, cooling in more homes, and reduced carbon emissions.
Cities that are “electrification ready” stand to benefit by making it easier and more affordable for contractors to install heat pump HVAC (heating, ventilation, and air conditioning) systems and heat pump water heaters. Amending zoning and permitting rules are two prime strategies.
Relatively little attention has been paid to the role local zoning ordinances play in the siting of heat pumps. Ordinances vary across jurisdictions, and convoluted requirements can make it difficult to find a legal location for heat pump equipment. No existing city ordinances are widely accepted as models to enable heat pump installations.
Where heat pump installers run into trouble
Federal, state, county, and city codes all play a part in how we electrify buildings. For example, green building “reach codes” have made news by trying to move buildings off gas. However, local zoning ordinances are where the rubber hits the road for contractors responsible for installing electric equipment.
The California energy code establishes requirements for electric readiness and minimum space dimensions for heat pumps. However, it provides no specific guidelines on where to site electric appliances. Amendments to zoning ordinances can address these gaps, but few cities in California have taken action. Because heat pump penetration in the state is only about 3% of households, compared with 20% to 36% in other southern states like Texas and Florida, California city planners are less likely to have considered heat pumps in designing municipal ordinances.
SPUR interviews with city staff and contractors and reviews of municipal ordinances reveal that heat pump installations face two common issues: whether electric equipment can be sited in setbacks, in garages, or on roofs and whether heat pump compressors exceed the maximum outdoor decibel (dBA) levels allowed by local ordinances. Kyle Roberts at Precision Air Systems Inc., a Bay Area contracting firm that installs heat pumps told us that some cities require complex sound engineering and other planning documents that can serve as a real barrier, especially for less experienced contractors.
Heat pump water heaters face similar challenges. They’re often slightly taller and wider than gas counterparts and sometimes require extra space for air ventilation. They may need to be installed in garages or outdoor sheds and risk running afoul of zoning restrictions as well as building code rules (e.g., requiring a condensate drain or a stand above the floor).
Some restrictive zoning rules are particularly relevant in neighborhoods of single-family detached homes, where large setbacks are codified to preserve greenspace, reduce noise, and prevent overcrowding. In denser cities like San Francisco, “zero-lot line” housing (directly abutting buildings) is the norm, and backyards and roofs are more relevant siting locations than side yards.
Siting
Bay Area cities with large single-family detached housing stock do not allow mechanical equipment within three feet of the property line — a fire safety standard. But in some cities, for example, in Oakland and Cupertino, common setback lengths extend 5 feet to 6 feet (depending on zoning, property size, or both), potentially ruling out installation of heat pump HVAC compressors or outdoor heat pump water heaters in small side yards.
A simple solution is to include “exemptions” (or exceptions) for placing electric equipment in setbacks up to 3 feet of the property line. Exemptions give property owners flexibility for essential improvements and are a critical tool for modifying zoning ordinances as communities adopt new technologies. Creating definitions for “electric equipment'' would help planners craft these exemptions, and it would support flexible siting by providing clear interpretation of the codes for both city reviewers and project applicants, making it easier to confirm compliance and process applications.
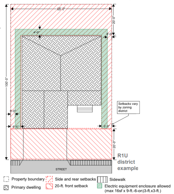
Exemption for Electrical Equipment in Menlo Park
Setbacks limit the closeness of buildings and structures to property lines. The City of Menlo Park allows electric equipment to be located within setbacks.

In larger multifamily buildings, exemptions for roof space are essential. San Francisco recently changed its planning code to make additional roof area available and to allow 16 feet of additional height for mechanical equipment.
For heat pump water heaters, which often need to be placed in garages, basements, or outdoor sheds, specific exemptions may be required for nonconforming uses, landscaping, floor-area ratio, or other municipal code categories that limit what building owners can install in certain spaces.
Accounting for Noise
Some mixed-use urban neighborhoods experience traffic and commercial activity that exceeds the noise created by home appliances; residential neighborhoods may prefer a quieter environment and stricter noise limits.
Many city noise ordinances don’t account for typical noise levels from heat pump HVACs or traditional air conditioning systems. In many cases, existing air conditioning may already violate local ordinances. Citing Seattle’s 45 decibel nighttime limit, Mitsubishi notes that many traditional HVAC systems cannot meet local noise limits.

Photo by Rupert Ganzer via Flickr
There’s good news for noise-sensitive neighborhoods. Inverter technologies are making heat pump HVACs much quieter. Unlike fixed heat pumps, which turn on and off throughout the day, regularly increasing noise levels, an inverter maintains a continuous cycle, slowing dramatically down as temperatures stabilize, thus reducing noise significantly. They produce maximum noise only when responding to a drastic temperature difference.
How Heat Pump Inverters Decrease the Frequency of Noise
A traditional single-speed air conditioner cycles on and off to full power and maximum noise. A modern inverter heat pump smoothly rises to full power, then relaxes into a low power mode at a lower background sound level.

Unfortunately, as SPUR’s analysis shows, 15 major Bay Area cities have maximum allowable noise levels below the dBA ratings on common heat pump appliances, including inverter-based models.
Bay Area Noise Ordinances and Heat Pump Noise Ratings for Single-Family-Home Zones
Maximum dBA varies across zones in many cities. Values typically represent measurements taken at about 3 feet from the noise source (in San Francisco, one meter is used).

Note: Table reflects only exemptions impacting heat pumps.
Cities could raise maximum allowable noise levels for inverter technologies — a 65 dBA maximum would allow for significant consumer choice.
Cities should consider realistic distances between the noise source and the receiving location. Most cities measure noise at the property line, matching the manufacturer dBA rating (measured 3 feet away). However, if a 60 dBA unit is in a 6-foot side yard and the neighbor also has a 6-foot side yard, the worst case is the unit is 9 feet from the neighbor’s interior setback. At that distance, sound attenuation results in 50.5 dBA, similar to moderate rainfall.
Translating Decibel Levels to Familiar Noises

Other ways to dampen noise include fences and walls at the property line, or isolation pads, fan blade dampers, shielding, or sound-attenuating blankets provided by manufacturers. If this equipment is used, noise estimates should be revised downward.
How planning staff can take action
Menlo Park offers a model approach. In 2023, a cross-departmental team changed the city’s zoning code to help electrify existing homes. It started by identifying barriers in municipal regulations. It then removed those barriers by adding definitions for “electric equipment” and inserting exemptions in the zoning code.
City of Menlo Park’s Electric Equipment Zoning Amendments, 2023
Proposed modification | Effect of modification |
Create a definition of electric equipment and enclosures | Defines terms for use in other sections |
Modify the definition of building coverage to exempt electric equipment enclosures | Simplifies permit review |
Modify the definition of floor area to exclude electric equipment enclosures | Simplifies permit review |
Modify the garage definition to indicate that there are allowable encroachments into the clear space | Creates a basis for encroachments in garages |
Modify the definition of gross floor area to exclude electric equipment enclosures | Simplifies permit review |
Modify the development regulations for the R2 low-density apartment and R3 apartment zoning districts to exclude electric equipment enclosures from landscaping requirements | Simplifies permit review |
Convert the allowed encroachments section of the encroachments and balconies chapter to a table for clarity, allow equipment less than four feet in height without an enclosure between the dwelling and the street if screened, and allow a single electrification enclosure per dwelling unit in the side or rear setback, provided: a. The enclosure does not exceed sixteen square feet in area; b. The enclosure does not exceed nine feet, six inches in height; c. The encroachment does not exceed four feet into the side or rear setback; and d. The enclosure is no closer than three feet to the side or rear property line | Simplifies permit review and outlines specific encroachments for electric equipment and electric equipment enclosures |
Modify the off-street parking section to: a. Allow EV chargers and gas and electric tankless water heaters mounted 48 inches above the slab of the garage as permitted encroachments b. Specify that electrification equipment could be located within the clear space in up to two three-feet-by-three-feet areas in garages for existing dwelling units. c. Require resident to submit form acknowledging voluntary reduction of parking area | Outlines specific allowances for electric equipment encroachments in garages |
Add a subsection to the nonconforming structures chapter clarifying dwellings where electric equipment encroaches into the required clear space for garages and/or carports would not be considered nonconforming with respect to minimum required parking | Simplifies permit review 13 |
Source: Ori Paz, “Removing Known Barriers: Changing Zoning to Help Electrify Existing Homes,” BAYREN Forum, December 7, 2023.
The city involved implementers and building officials in writing the ordinance to help identify potential issues and create a stronger ordinance, according to Ori Paz, a management analyst with Menlo Park who led the ordinance amendment process.
Other cities have also taken action. Palo Alto amended noise ordinances in 2023 to allow for more heat pump installations. Changes could have gone further in raising decibel maximums, but Palo Alto is the first city SPUR is aware of that has included an accommodation for inverter-based HP-HVACs in its noise ordinance.
Zoning amendments that provide equipment siting flexibility could increase permit compliance. Policymakers should understand that unpermitted retrofit work regularly skirts zoning and building code requirements. During a BayREN forum, Eric Morrill, president of All-Electric California, noted that he finds some previously performed unpermitted work in the vast majority of the buildings he works in.
To prevent installation of more unpermitted heat pumps and to offer flexibility in clean appliance siting, SPUR recommends four zoning code strategies:
- Identify staff with experience in sustainability to craft ordinance amendments with buy-in from key building officials. Involve building staff, attorneys, and council members in making it easy and legal for households to electrify.
- Increase allowed noise levels, and build in exemptions for inverter-based heat pump technologies. SPUR recommends 60–65 dBA for inverter technologies and 55–60 dBA for non-inverters. In addition, consider allowing higher dBA levels for a time interval that’s aligned with the inverters’ “ramp-up” period. If appliance sound needs to be assessed, cities should use simple sound attenuation calculations that reflect the distance from the appliance to the neighbors’ interior setback as well as use of sound-dampening equipment.
- Create exemptions for electric equipment siting. In single-family detached zones, allow compressors to be sited up to 3 feet from the property line in side yards. Consider other exemptions to restrictions on floor-area ratios, landscaping, front and rear setbacks, height, and garage space.
- Don’t require sound engineering documentation. Use a checklist to review compliance with sound ordinances. Overburdensome proofs of compliance could deter contractors from seeking permits.
Read the other articles in the Smoothing the Transition to Heat Pumps series:
Part 2: Permitting and Inspections
Part 3: State Legislation Solutions